攀枝花市人民政府网站
站群
今天是:
攀枝花市自然资源和规划局
简
|
繁
|
注册
|
登录
网站首页
政府信息公开
政务服务
互动交流
专题专栏
您当前的位置:
首页
>
政府信息公开
>
通知公告
>
规划公示公布
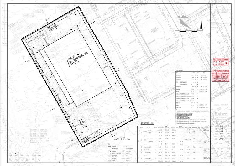
艾斯能源科技(攀枝花)有限公司年产6万立方米钒电解液项目(一期)建设工程规划许可及方案设计总平面图批后公布
来源:
攀枝花市自然资源和规划局
发布时间:
2026-02-09
选择阅读字号:[
大
中
小
] 阅读次数:
0
审核: 滕琦 责任编辑: 闫嘉莉